Vendita
Elegante attico nel centro di Pisa
Scopriamo di più
Rif. SAFI44783
Elegante attico in vendita a Pisa, situato nello splendido centro storico della città Toscana, nelle immediate vicinanze del prestigioso lungarno Vespucci. Questo appartamento, estremamente luminoso, si trova in un palazzo d'epoca, sapientemente ristrutturato ed è stato completamente rinnovato con gusto ed eleganza, combinando il fascino dell'immobile storico con la modernità del comfort.
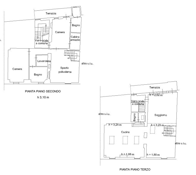
Distribuito su due livelli, con accesso dalla grande sala con balcone e con una superficie abitabile di circa 244 m², l'attico offre ampi spazi suddivisi in quattro locali, tra cui una grande sala molto luminosa da cui si accede alla grande cucina abitabile e molto moderna, due confortevoli camere da letto e ben tre bagni, perfettamente rifiniti per garantire massimo comfort e raffinatezza. La camera padronale con terrazza, è dotata di un bagno privato e una generosa cabina armadio, perfetta per chi cerca un tocco di esclusività.
Il grande soggiorno con terrazza, gode di molta luminosità ed offre un ambiente accogliente e raffinato, mentre l'ampia cucina abitabile si presta ad accogliere la famiglia come spazio conviviale. Il balcone della sala si affaccia su di un parco privato, in un contesto unico e suggestivo, offrendo luce a tutto l'ambiente grazie alle grandi vetrate.
L'appartamento si trova in un palazzo storico dotato di un ingresso signorile, e offre il comfort di un ascensore con accesso diretto all'interno dell'appartamento, che si ferma a tutt'e due i piani su cui si articola la residenza, un dettaglio di prestigio che aggiunge ulteriore valore alla proprietà.
Elegante attico nel centro di Pisa
via cesare beccaria,10 Pisa
Elegante attico in vendita a Pisa, situato nello splendido centro storico della città Toscana, nelle immediate vicinanze del prestigioso lungarno Vespucci. Questo appartamento, estremamente luminoso, si trova in un palazzo d'epoca, sapientemente ristrutturato ed è stato completamente rinnovato con gusto ed eleganza, combinando il fascino dell'immobile storico con la modernità ....Continua a leggere
Giardino
Non presente
MQ
244.00
Agenzia
Santandrea Sede Firenze
Tipologia
Appartamento
Destinazione D'uso
Residenza
Numero Locali
4
Riscaldamento
Metano
Piano
2
Contratto
Vendita
Anno di Costruzione
1700
Tipo Impianto
Piano
Metano
Condizionatore
Autonomo
Clima Freddo-Caldo
Numero Terrazzi
1
Numero Piani Totali
2
Tipo Cucina
Soggiorno Cucina
Tipo Riscaldamento
Metano