Exclusive Homes Worldwide

Sale

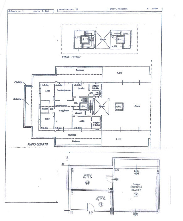
Penthouse in the Center of Ravenna

870.000 €

More details

Ref. SABO47132

Penthouse in the Center of Ravenna
Via Francesco De Sanctis,15A Ravenna

Elegant penthouse of about 239sqm, located on the fourth and top floor, directly served by floor elevator and strategically located with panoramic views of the Caesar Park. The main entrance opens onto a large living room, which connects directly to the eat-in kitchen equipped with a central island. The latter ....Read more

icona dimensioni

SQ
239.00
icona agenzia

Branch
Santandrea Sede Bologna
icona tipologia

Tipology
Flat
icona destinazione d'uso

Intended Use
Residence
icona locali

Number of Rooms
9
icona riscaldamento

Heating
Thermostat
icona piano

floor
4
icona contratto

Contract
For Sale
icona anno costruzione

Year of Build
2021

DETAILS icona freccia

System type Underfloor heating Floor
Air conditioning Cooling system
Number of terraces 1
Total number of floors 4
Kitchen type Open-plan kitchen/living area
Heating type Thermostat
Sale

Penthouse in the Center of Ravenna

870.000 €

Property offered by
Santandrea Sede Bologna

icona broker

Alessandro Mazzolini

RE Private Advisor

Missing Data
Data Entered
Missing Data
Data Entered
Missing Data
Data Entered
Missing Data
Data Entered
Missing Data
Data Entered
Missing Data
Data Entered

By submitting this form, you agree to the processing of your personal data in accordance with our website’s privacy policy. For more details, please visit our Privacy Policy page.

Other Real Estate

Portofino - Splendido Attico con Terrazza Sul Mare a.....

4.500.000 €

2 Badrooms 107 SQ 2 Bathrooms

Bologna - Appartamento in Palazzo Storico in Piazz.....

3.900.000 €

3 Badrooms 222 SQ 3 Bathrooms

Milano - Elegante appartamento di ampia metratura

3.700.000 €

7 Badrooms 351 SQ 4 Bathrooms

Bologna - Appartamento Storico nel Centro di Bolog.....

3.000.000 €

4 Badrooms 286 SQ 4 Bathrooms