Rent
Representative office with corner balcony and view of the Basilicas Park
More details
Ref. SAMI45199
In the heart of Milan's historic center, in the prestigious Carrobbio district, we offer for rent an elegant representative office located on the second floor of a 1920s period building, equipped with a large lobby and concierge service.
A solution characterized by bright rooms, a functional layout and a rare direct view of the Basiliche Park, a unique scenario in the Milanese professional scene.
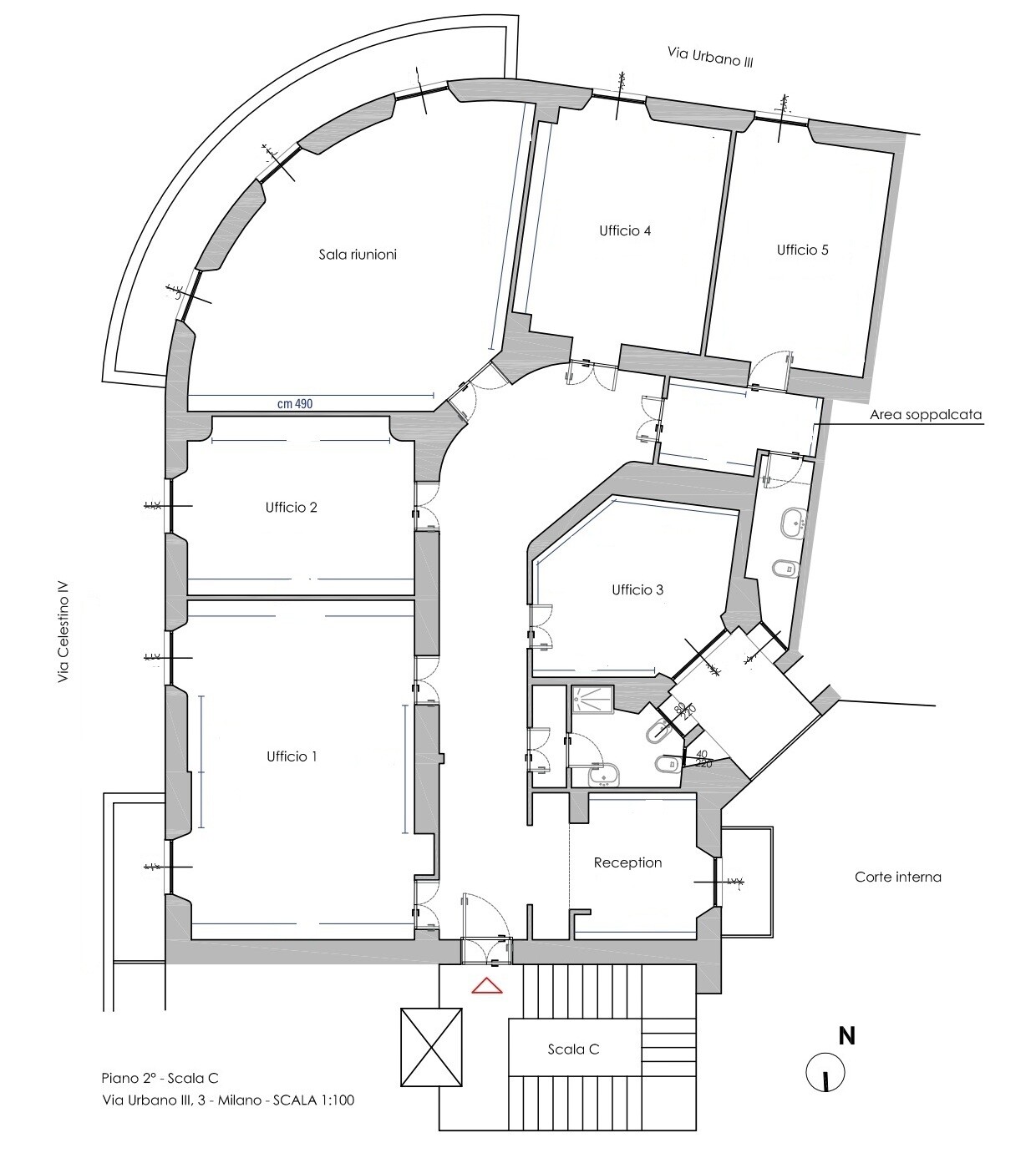
With an area of 214 m², the office offers spacious, refined and versatile spaces, ideal for professional offices, executive offices or realities looking for a prestigious context in the center of Milan.
Natural light, balconies with open views of the green and the architectural elegance of the building create a representative and pleasant working environment, perfect for activities that require image, comfort and efficiency.
The real estate unit consists of:
- Entrance hall with adjacent break area (formerly used as reception)
- Five offices, all with balconies
- Large corner meeting room, extremely bright and with a panoramic balcony overlooking the Basilicas Park
- Two bathrooms
- Spaces rationally distributed and easily adaptable to different operational configurations
The unit's angular location and numerous openings ensure natural light throughout the day.
The combination of the charm of period architecture and modern comforts - double-glazed windows and doors, independent split air-conditioning system, central heating system with thermovalves - gives the spaces a balance between representation and functionality.
The property is situated in a highly strategic location, within walking distance of:
- Piazza Missori
- Corso di Porta Ticinese
- Via Torino
The M4 "Vetra" stop is just 300 meters away, ensuring quick connections to the center, Linate airport and the entire subway network.
The area is also served by numerous surface transportation, restaurants, shops and services, making it ideal for structured professional activities.
Perfect for:
- Professional offices
- Executive offices
- Companies seeking a representative environment in the historic center
- Teams in need of brightness, image and accessibility
Representative office with corner balcony and view of the Basilicas Park
Via Urbano III,3 Milano
In the heart of Milan's historic center, in the prestigious Carrobbio district, we offer for rent an elegant representative office located on the second floor of a 1920s period building, equipped with a large lobby and concierge service. A solution characterized by bright rooms, a functional layout and a rare ....Read more
SQ
214.00
Branch
Santandrea Sede Milano
Tipology
Office
Intended Use
Commercial
Number of Rooms
7
Heating
Methane
floor
2
Contract
To Let
Year of Build
1920
System type
Radiator
Centralized
Air conditioning
Individual
Total number of floors
5
Heating type
Methane